Appartamento in Affitto
Immersa nel verde e circondata da un vasto parco privato, proponiamo in Affitto, Appartamento al piano rialzato in prestigiosa villa libera su quattro lati situata nella rinomata Strada Moncalvo. La proprietà si distingue per un'architettura unica e una posizione privilegiata che regala una vista affascinante sull'intera città di Torino e sull'arco alpino.
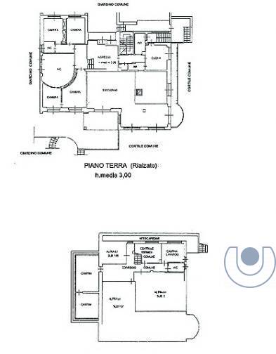
La zona giorno, recentemente rinnovata, è caratterizzata da finiture contemporanee e materiali di qualità. Comprende un ampio soggiorno con area pranzo e una cucina abitabile, ambienti luminosi e ben organizzati che dialogano direttamente con l'esterno. Da qui si accede a un terrazzo di forte impatto scenografico, ideale per momenti di relax e convivialità all'aperto. Un ulteriore balcone con affaccio su Strada Moncalvo completa la zona giorno, ampliando le aperture esterne dell'abitazione.
La zona notte, sapientemente separata per garantire la massima privacy, si compone di una suite padronale esclusiva, dotata di un'ampia cabina armadio e di una sala da bagno privata con Jacuzzi e doccia, concepita come una vera e propria area relax.
Due spaziose camere da letto servite da un bagno dedicato, ideali per figli o ospiti.
Gli spazi esterni comprendono un giardino condominiale ben mantenuto e un ampio cortile interno. La proprietà dispone inoltre di un posto auto coperto in autorimessa, oltre alla possibilità di usufruire di ulteriori aree di parcheggio all'interno del complesso.
La piscina panoramica, affacciata sulla città e sull'arco alpino, completa il tutto, e conferisce all'abitazione un carattere esclusivo, inserendola in un contesto residenziale di assoluto pregio sulla collina torinese.
Vuoi vendere la tua casa? Contattaci per avere una valutazione GRATUITA e SENZA IMPEGNO!
Visita il nostro SITO e i nostri SOCIAL per rimanere aggiornato sulle nostre proposte e sulle novità del mondo immobiliare!
Il presente annuncio non costituisce elemento contrattuale.
Classe energetica
EP glnr: 175.00 kwh/m²






























