Villa in Affitto
Immersa nel verde e circondata da un vasto parco privato, proponiamo in Affitto una prestigiosa Villa libera su quattro lati situata nella rinomata Strada Moncalvo.
La proprietà si distingue per un'architettura unica e una posizione privilegiata che regala una vista affascinante sull'intera città di Torino e sull'arco alpino.
Sviluppata su tre livelli, la residenza è caratterizzata da ambienti vasti e straordinariamente luminosi, grazie alle ampie vetrate che incorniciano la città di Torino.
La distribuzione dei volumi è stata studiata per garantire la massima privacy e tranquillità a ogni componente della famiglia, assicurando un comfort abitativo in ogni piano della casa.
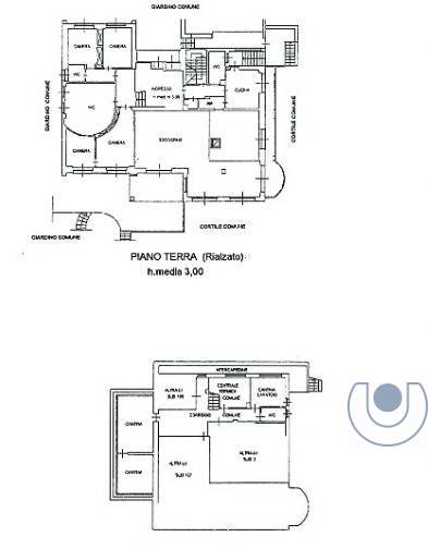
Al piano rialzato, l'accoglienza è affidata a un ampio disimpegno che collega armoniosamente i diversi ambienti della casa.
Un maestoso androne, ideale come sala d'attesa o zona di rappresentanza, conduce verso il cuore della zona giorno: un salone doppio di generose dimensioni con angolo bar, perfetto per il relax e il ricevimento, che si apre su uno splendido terrazzo vivibile con affaccio panoramico. Il piano è completato da una cucina abitabile funzionale e da un primo bagno di servizio.
La zona notte, sapientemente separata per garantire la massima privacy, si compone di:
Una suite padronale esclusiva, dotata di un'ampia cabina armadio e di una sala da bagno privata con Jacuzzi e doccia, concepita come una vera e propria area relax.
Due spaziose camere da letto rifinite con parquet, servite da un bagno dedicato, ideali per figli o ospiti.
Salendo al piano superiore, veniamo accolti da un salone di alta rappresentanza con una sala da pranzo dedicata, ideale per ospitare cene conviviali in un ambiente arioso e luminoso.
La cucina, spaziosa e abitabile, gode di un accesso diretto al balcone.
L'ala privata di questo livello è preceduta da uno studio riservato, perfetto per lo smart working. Attraverso un disimpegno, si accede a una sontuosa sala da bagno dotata di vasca Jacuzzi.
La zona notte si sviluppa ulteriormente con:
Una master bedroom di notevoli dimensioni, caratterizzata da un caldo pavimento in parquet e finestre dal design architettonico particolare che incorniciano il paesaggio.
Una suggestiva camera mansardata, ideale come stanza per gli ospiti o area hobby.
Questo spazio riservato è perfetto per essere adattato alle proprie esigenze. A completare la stanza un'ulteriore terrazzo con vista panoramica.
Al piano interrato una tavernetta, caratterizzata da ambienti curati e ben distribuiti.
La soluzione si compone di un accogliente soggiorno con camino e cucinotta con diretto accesso esterno, tre camere da letto molto luminose e ben organizzate, due bagni finestrati, una comoda cantina ed un locale lavanderia.
Completa la proprietà un ampio garage con apertura automatica, ideale per più utilizzi e massima comodità.
A fare da cornice alla casa, un magnifico giardino che circonda l'intera proprietà, ideale per godersi la natura. Il giardino è impreziosito da una splendida piscina.
Inoltre, per garantire praticità la proprietà è completata da comodi posti auto esterni che offrono un accesso pratico e ordinato alla residenza.
Classe energetica
EP glnr: 175.00 kwh/m²



















































